Architekturdienstleister und Energieberater Christoph Quiatkowski
zurück

Einfamilienhaus auf dem Lande

Jahr: 2014

Status: genehmigt

Für einen jungen Bauherren habe ich ein Einfamilienhaus auf dem Land umgesetzt.

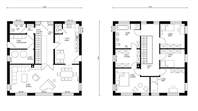
Ein großzügiger Flur mit freier grader Treppe als Enfilade durch das Erdgeschoss, symmetrische Anordnung der Räume im Obergeschoss und Schlafzimmer mit kleiner Enfilade durch angeschlossene Ankleide zum Badezimmer bilden einen klaren Grundriss, der die Wünsche der Bauherren angemessen umsetzt. Die Wünsche der Außengestaltung und Anordnung der Fenster und der Klinkerfassade konnten mit Hilfe der Computergrafik überprüft werden. Das energetische Konzept wurde ebenfalls von mir erstellt. Entstanden ist ein rundum überzeugendes Wohnhaus mit Garage. Die Grundrisse sind auch aus Datenschutzgründen nur ähnlich.

  • Rendering/Fotomontage
    Rendering/Fotomontage
  • Rendering/Fotomontage
    Rendering/Fotomontage
  • Grundrisse
    Grundrisse